zithulele livelihood centre

cafe - skills development - training centre

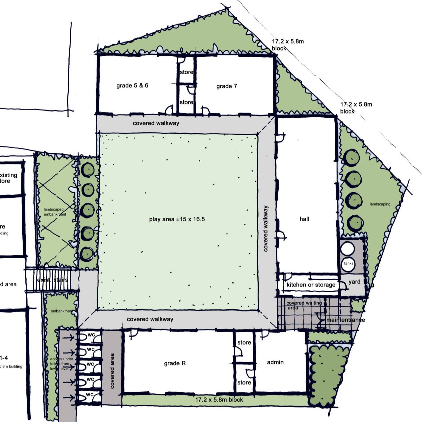
zithulele independent school

concept development and future planning

west coast

business and residential development - blending west coast and art deco architecture

botswana lodge

prefabricated luxury pods

hiat saudi

concept development for high institute of advanced technology riyadh

more

older projects

This page was created with Mobirise